Performance Center Immobilier Agence
Télécharger la fiche
Nouveauté

Immeuble 1500 m² 4 etage(s)

Sochaux (25600)
493 200 € Référence 01-IMMEUBLE -SOCHAUX

A propos de ce bien

PERFORMANCE CENTER IMMOBILIER, vous propose à la vente pour Marchands de biens, investisseurs, spécialistes de la rénovation, la vente d’un immeuble sur 4 étages deux locaux commerciaux et/ou d'activité àr sur la commune de PROCHE Montbeliard

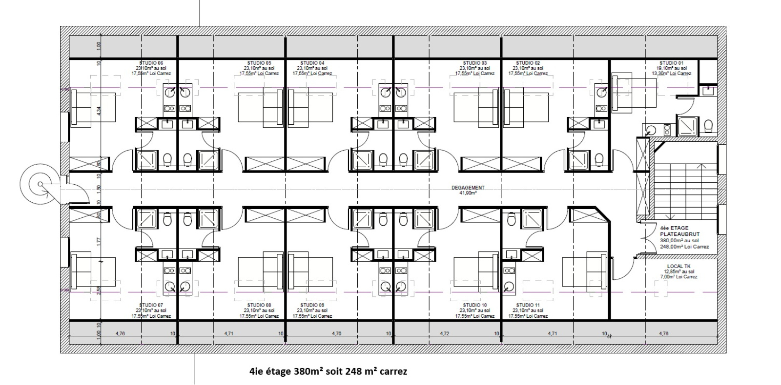
Plateau R+3 de 368,50m + escalier 4,90m –

Plateau R+4 de 380m2(carrez 248m²)
hauteur sous plafond de 1,20m sous pente à 3,75 m

Situé dans un quartier dynamique, proche des commodités

Cet immeuble a besoin d'une rénovation complte des aides importantes sont possibles.

Grosse demande de meublés pour étudiants et ingénieurs.( remplissage sur le site sur 80% à 90% )

Usine Peugeot et cité universitaire à proximité.

HONORAIRES COMPRIS DANS LE PRIX A CHARGE VENDEUR

Etudie toute proposition financière

Contact LAURA

PERFORMANCE CENTER IMMOBILIER

Caractéristiques de ce bien

  • Surface 1 500 m²
  • carrez 1 500 m²
  • construit en 1970
  • 4 niveau(x)
  • 4 étage(s)
  • vue SUR COMMERFCE ET AUTRES IMMEUBMES
  • cave

Diagnostics énergétiques

Consommation énergétique
A B C D E F G
Emission de gaz à effet de serre
A B C D E F G
DPE ANCIENNE VERSION

Informations financières

Prix de vente 493 200 € Les honoraires d'agence seront intégralement à la charge du vendeur
Taxe foncière annuelle 6 000 €

Informations de copropriété

Copropriété Oui
Nombre de lots 52
Plan de sauvegarde Non

Autour du bien

  • Commerces et santé
  • Loisirs
  • Ecoles
  • Transports
  • Pratique

Calcul des mensualités

* Champs obligatoires